Immeuble mixte d'exception au centre-ville de Liège!
4000 - LIEGE - RUE DES CLARISSES 46
390.000 €
Description
Immeuble commercial mixte (commerce/bureau/appartement) aux volumes surprenants!
Vous êtes à la recherche d’un investissement prometteur en plein centre-ville de Liège ?
Ne cherchez plus ! Cet immeuble mixte, idéalement situé dans une rue commerçante très fréquentée, a tout pour plaire.
Les points forts :
Rez-de-chaussée : Un restaurant florissant avec terrasse arrière, reconnu pour son succès, sa clientèle fidèle et son emplacement stratégique constitue une source de revenus immédiate.
Caves sous toute la superficie du restaurant.
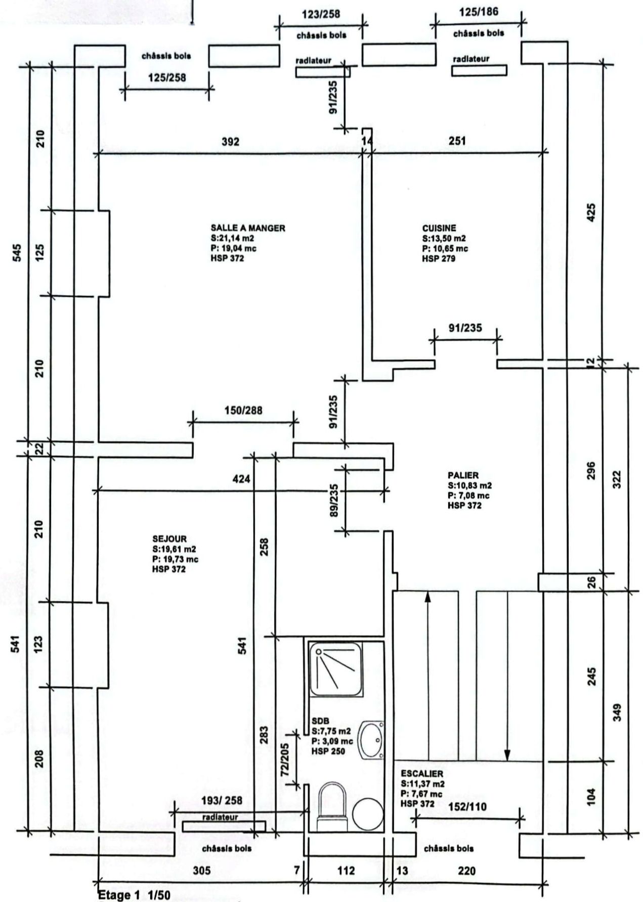
1er étage : Un studio lumineux, à rénover selon vos goûts et vos projets.
Entresol: Espace bureau et/ou stockage.
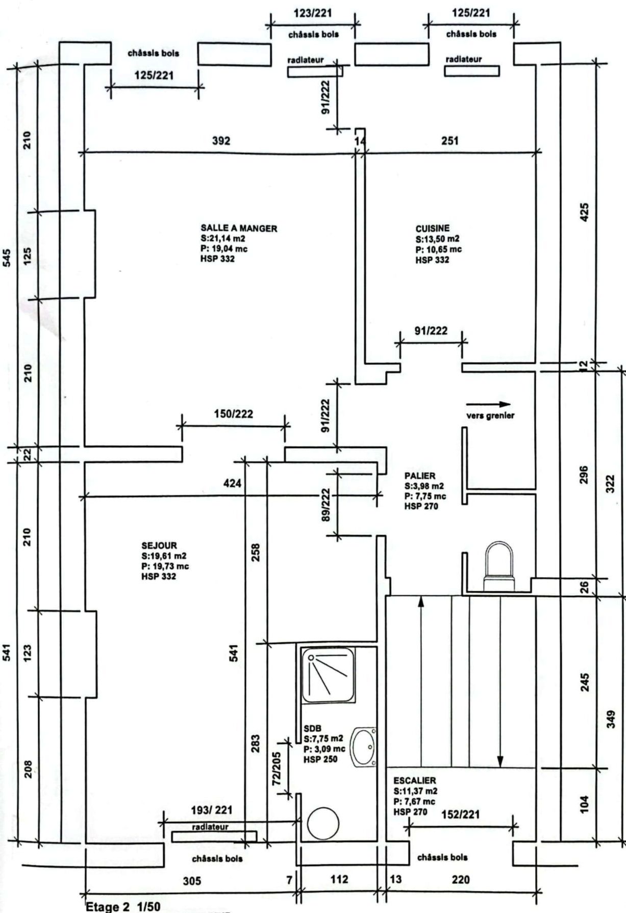
2ème étage : Un duplex spacieux, offrant un grand potentiel après rénovation.
Un projet à fort potentiel :
Bien que le 1er et le 2ème étage nécessitent des travaux importants, cela représente une occasion unique de personnaliser les espaces et d’optimiser la rentabilité de cet immeuble. Avec un peu d'imagination, vous pourriez en faire un véritable bijou au centre-ville !
Localisation premium :
Proximité des commerces, des transports en commun et des zones touristiques.
Investissez dans un projet à fort potentiel de valorisation et profitez de l'énergie vibrante du centre-ville liégeois.
Contactez-nous dès maintenant pour plus d'informations ou pour organiser une visite...
0475/75.36.36 ou
immobiliere@vandrhome.be
Les informations fournies ont un caractère indicatif et non contractuel.
Prix demandé hors frais de notaire (hors éventuels droits d'enregistrement).

Extérieur
- Bien à front de rue : Oui
- Terrain plat : Oui
- Raccordement à l'égout : Oui
- Eau, gaz & électricité : Oui
- Télédistribution : Oui

Urbanisme
- Type de zone inondable : Zone non inondable
- Affectation urbanistique la plus récente sur la base des dénominations utilisées dans le registre des plans : Zone d'habitat (résidentiel, urbain ou rural)
- Peb étage 1: D (n°20250121005106)
- Peb étage 2: F (n°20250121004057)

Finances
- Prix : 390.000€
- Immeuble mixte : Oui
Prix demandé hors frais de notaire
(hors éventuels droits d'enregistrement)




















