Immeuble mixte
4360 - oreye - Grand route 92/1
399.000 € + fond de commerce 50.000€
Description
Immeuble commercial mixte (commerce/bureaux/appartement) aux volumes surprenants
VANDR'HOME IMMOBILIERE vous propose ce bien à la vente... 0475/75.36.36
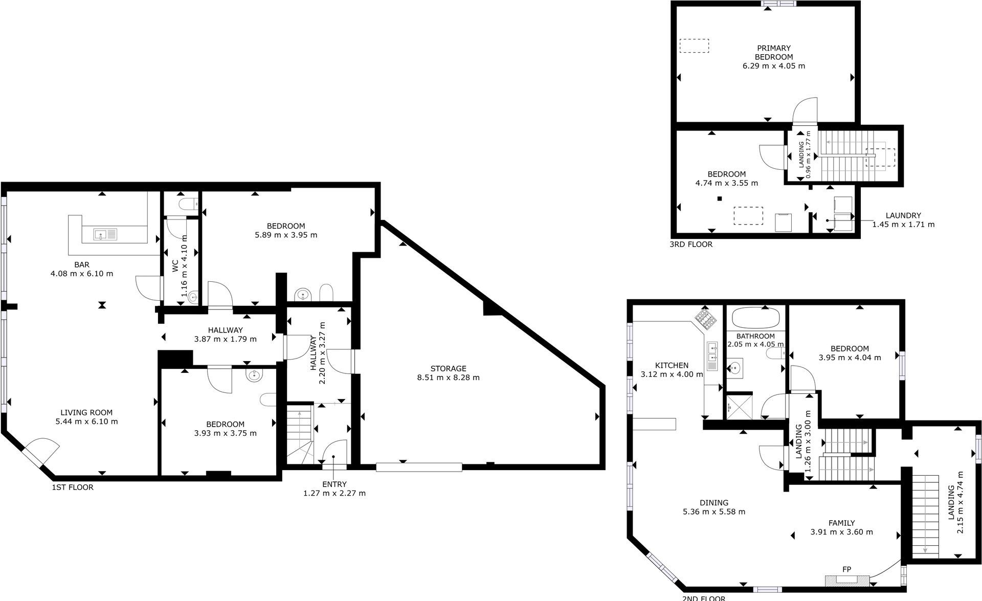
Situé à proximité des axes autoroutiers (E40-E42) et en bordure d'une rue commerçante très fréquentée, ce bien d'une surface exploitable d'environ 328m² est idéal pour le développement d'un projet mixte (commerce/bureaux/logement).
Il se compose comme suit:
Un rez commercial d'environ 172m² comprenant 1 bar de +/- 58m², 2 pièces de +/- 15 et 23m² chacune, 1 wc, 1 hall d'entrée de +/- 10m², 1 entrepôt et/ou garage de +/- 60m² à l'arrière.
Un duplex d'environ 156m² comprenant 1 cuisine entièrement équipée de +/- 12m², 1 séjour de +/- 30m², 1 salon de +/- 16m², 1 sdb de +/- 8m², 3 chambres de +/- 25, 16 et 15m² chacune, 1 dressing de +/- 2,5m².
Ce bien offre également un large emplacement de parking extérieur de +/- 8 voitures.
Découvrez vite ce bien sur: https://my.matterport.com/show/?m=AWTM9PeYgmR
Les informations fournies ont un caractère indicatif et non contractuel.
Prix demandé hors frais de notaire (hors éventuels droits d'enregistrement).

Extérieur
- Bien à front de rue : Oui
- Terrain plat : Oui
- Raccordement à l'égout : Oui
- Eau, gaz & électricité : Oui
- Télédistribution : Oui

Urbanisme
- Type de zone inondable : Zone non inondable
- Affectation urbanistique la plus récente sur la base des dénominations utilisées dans le registre des plans : Zone d'habitat (résidentiel, urbain ou rural)

Finances
- Prix : 399.000€ + fond de commerce 50.000€
- Immeuble mixte : Oui
Prix demandé hors frais de notaire
(hors éventuels droits d'enregistrement)


















